Announcement

Collapse
No announcement yet.

decorating tips

Collapse
X
 
  • Filter
  • Time
  • Show
Clear All
new posts

  • #16
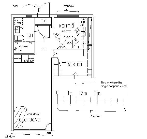
    The markings on toilet doesn't really matter, the ones in the kitchen are the norm like sink, the oven etc. The rest of them squares in ALKOVI and in living room are basically closets.
    In da butt.
    "Do not worry if others do not understand you. Instead worry if you do not understand others." - Confucius
    THE UNDEFEATED SUPERCITIZEN w:4 t:2 l:1 (DON'T ASK!)
    "God is dead" - Nietzsche. "Nietzsche is dead" - God.

    Comment


    • #17
      Good. Windows are good at giving the illusion of space.

      *sigh* Give me €500, a place to sleep and a bottle of good red wine and I could give you a house of the gods.

      Instead I toil away in labs, working on genes and chemicals.

      To be fair, I also really enjoy the biochemistry.

      It's just hard to combine that and interior design into one career.

      Ever consider moving the computer into the bedroom and devoting the living room entirely to communal needs? Or at least, making sure it doesn't dominate the living room by being the most obvious part of it.

      I so do hate it when people make TV's or computers the central piece of a room.
      Exult in your existence, because that very process has blundered unwittingly on its own negation. Only a small, local negation, to be sure: only one species, and only a minority of that species; but there lies hope. [...] Stand tall, Bipedal Ape. The shark may outswim you, the cheetah outrun you, the swift outfly you, the capuchin outclimb you, the elephant outpower you, the redwood outlast you. But you have the biggest gifts of all: the gift of understanding the ruthlessly cruel process that gave us all existence [and the] gift of revulsion against its implications.
      -Richard Dawkins

      Comment


      • #18
        also, people, I'm looking for the whole nine yards. I got nothing now. I need tips on colours, any jungle items (plants maybe?), lights, EVERYTHING. Consider it has NOTHING else except what I told you (computer desk, chair to go with it).

        I need pictures, suggest me makers and models, suggest me everything, be as accurate as possible or just give directions. Show me photos, ask me questions.

        In return I will do the best I can, and I will take photos when it's all over and show you my place (maybe flash a nipple for you guys).

        If there are little things sold on the internet, let me know, show me the link and the exact product you recommend. Everything from art to comfort, from design to .. bleh you got the idea.

        My problem is I know what I like and I have strong opinions on if I like it or not. I just need to see it first
        In da butt.
        "Do not worry if others do not understand you. Instead worry if you do not understand others." - Confucius
        THE UNDEFEATED SUPERCITIZEN w:4 t:2 l:1 (DON'T ASK!)
        "God is dead" - Nietzsche. "Nietzsche is dead" - God.

        Comment


        • #19
          Starchild, the ALKOVI is not big enough for my computer desk and computer. Even if I take the bed out of there, well then it's big enough, but where the computer now is, is also the place for the internet connection (cable plug) .. I CAN move it around the living room though with long enough cable. I MIGHT be able to move it all the way to ALKOVI where my bed now is, but the two won't fit together.
          In da butt.
          "Do not worry if others do not understand you. Instead worry if you do not understand others." - Confucius
          THE UNDEFEATED SUPERCITIZEN w:4 t:2 l:1 (DON'T ASK!)
          "God is dead" - Nietzsche. "Nietzsche is dead" - God.

          Comment


          • #20
            What's the flooring like? Vinyl, Hardwood or carpets?
            Exult in your existence, because that very process has blundered unwittingly on its own negation. Only a small, local negation, to be sure: only one species, and only a minority of that species; but there lies hope. [...] Stand tall, Bipedal Ape. The shark may outswim you, the cheetah outrun you, the swift outfly you, the capuchin outclimb you, the elephant outpower you, the redwood outlast you. But you have the biggest gifts of all: the gift of understanding the ruthlessly cruel process that gave us all existence [and the] gift of revulsion against its implications.
            -Richard Dawkins

            Comment


            • #21
              oh man.. I'm not sure if you call it vinyl, but I think it's vinyl.. it's not hardwood nor carpet.. so, unfortunately, vinyl
              In da butt.
              "Do not worry if others do not understand you. Instead worry if you do not understand others." - Confucius
              THE UNDEFEATED SUPERCITIZEN w:4 t:2 l:1 (DON'T ASK!)
              "God is dead" - Nietzsche. "Nietzsche is dead" - God.

              Comment


              • #22
                Can you add to the blue print the location and rough size of your current desk, computer, chair, and bed? Also, mark windows clearly and any useful outlets
                Exult in your existence, because that very process has blundered unwittingly on its own negation. Only a small, local negation, to be sure: only one species, and only a minority of that species; but there lies hope. [...] Stand tall, Bipedal Ape. The shark may outswim you, the cheetah outrun you, the swift outfly you, the capuchin outclimb you, the elephant outpower you, the redwood outlast you. But you have the biggest gifts of all: the gift of understanding the ruthlessly cruel process that gave us all existence [and the] gift of revulsion against its implications.
                -Richard Dawkins

                Comment


                • #23
                  OK I'll do that. It'll take my few minutes to do it, I have only paint in my puter.
                  In da butt.
                  "Do not worry if others do not understand you. Instead worry if you do not understand others." - Confucius
                  THE UNDEFEATED SUPERCITIZEN w:4 t:2 l:1 (DON'T ASK!)
                  "God is dead" - Nietzsche. "Nietzsche is dead" - God.

                  Comment


                  • #24
                    Vinyl is the nasty plastic stuff that's omnipresent in kitchens. Often with a horrible design or meant to look like ceramic/wood but just looks like plastic with stains.
                    Exult in your existence, because that very process has blundered unwittingly on its own negation. Only a small, local negation, to be sure: only one species, and only a minority of that species; but there lies hope. [...] Stand tall, Bipedal Ape. The shark may outswim you, the cheetah outrun you, the swift outfly you, the capuchin outclimb you, the elephant outpower you, the redwood outlast you. But you have the biggest gifts of all: the gift of understanding the ruthlessly cruel process that gave us all existence [and the] gift of revulsion against its implications.
                    -Richard Dawkins

                    Comment


                    • #25
                      Are you allowed to put up shelving or is there any already up?
                      Exult in your existence, because that very process has blundered unwittingly on its own negation. Only a small, local negation, to be sure: only one species, and only a minority of that species; but there lies hope. [...] Stand tall, Bipedal Ape. The shark may outswim you, the cheetah outrun you, the swift outfly you, the capuchin outclimb you, the elephant outpower you, the redwood outlast you. But you have the biggest gifts of all: the gift of understanding the ruthlessly cruel process that gave us all existence [and the] gift of revulsion against its implications.
                      -Richard Dawkins

                      Comment


                      • #26
                        yeah then I got vinyl.. no shelving, put I'm allowed to do that. Actually I'm quite free to do most things, I think the limit goes on painting and knocking down walls, though I CAN paint at least with white (original colour), not sure if I can paint other colours.

                        Ok pic coming soon.
                        In da butt.
                        "Do not worry if others do not understand you. Instead worry if you do not understand others." - Confucius
                        THE UNDEFEATED SUPERCITIZEN w:4 t:2 l:1 (DON'T ASK!)
                        "God is dead" - Nietzsche. "Nietzsche is dead" - God.

                        Comment


                        • #27
                          looks horrible but put down some things.
                          Also.. ET = lobby.

                          plug connectors are everywhere, but only one for internet (and tv cable) and those are under the comp desk.
                          Attached Files
                          In da butt.
                          "Do not worry if others do not understand you. Instead worry if you do not understand others." - Confucius
                          THE UNDEFEATED SUPERCITIZEN w:4 t:2 l:1 (DON'T ASK!)
                          "God is dead" - Nietzsche. "Nietzsche is dead" - God.

                          Comment


                          • #28
                            A north arrow would be helpful, so we can tell when and where you get sunlight.
                            Visit First Cultural Industries
                            There are reasons why I believe mankind should live in cities and let nature reclaim all the villages with the exception of a few we keep on display as horrific reminders of rural life.-Starchild
                            Meat eating and the dominance and force projected over animals that is acompanies it is a gateway or parallel to other prejudiced beliefs such as classism, misogyny, and even racism. -General Ludd

                            Comment


                            • #29
                              oh man I don't know... but the south window (the one next to comp desk) sees the sunlight as the sun rises in the morning. It gets hella hot in fact in living room because of this, if I don't open the 'balcony' door.
                              In da butt.
                              "Do not worry if others do not understand you. Instead worry if you do not understand others." - Confucius
                              THE UNDEFEATED SUPERCITIZEN w:4 t:2 l:1 (DON'T ASK!)
                              "God is dead" - Nietzsche. "Nietzsche is dead" - God.

                              Comment


                              • #30
                                Aww, you didn't need to translate the measurements over into feet.

                                Let's see....the ET might be a good place for a few plants. Help to provide a break between the entrance/kitchen and the lounge/bedroom. A nice poster on the wall would also serve to make it interesting it its own regard instead of just a odd snub-hallway. I'm liking the vintage art deco look currently.

                                Pity about the location of the computer. Best maybe to turn the area into a semi-professional area. Nice, comfortable chair, CD rack, hmmmm.

                                Give me some time young padawan
                                Exult in your existence, because that very process has blundered unwittingly on its own negation. Only a small, local negation, to be sure: only one species, and only a minority of that species; but there lies hope. [...] Stand tall, Bipedal Ape. The shark may outswim you, the cheetah outrun you, the swift outfly you, the capuchin outclimb you, the elephant outpower you, the redwood outlast you. But you have the biggest gifts of all: the gift of understanding the ruthlessly cruel process that gave us all existence [and the] gift of revulsion against its implications.
                                -Richard Dawkins

                                Comment

                                Working...
                                X